Options for Homes Ltd 2014© We are not regulated by the FCA and we do not offer advice on our products, finance or mortgages. We recommend you seek independent advice from regulated and qualified advisors. Links | Terms & Conditions

Home About Us The Orchard Homes Contact Us
Share on Facebook Share on Twitter Share on Reddit Share on Google Bookmarks Share on Digg

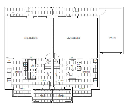
No 9 and no 10 -  3 bedroom semi- detached homes with garage.


Designed for being lived in Nos 9 and 10 have large lounges, open plan kitchen and dining area,  with a downstairs cloakroom.


On the first floor there is a master bedroom with an ensuite shower room, 2 further bedrooms and a family bathroom with shower bath and shower.


Outside the back garden has folding doors from the lounge to bring the inside and outside living areas together. The attached garage has power with parking for an additional car. Access is via the private road.


The house has air source heat exchanger & under floor heating with each room controlled by a thermostat/timer, providing flexibility and lowest cost. The homes are connected with Cat 5 network cabling to allow Internet TV, easy WiFi to each room from the central phone entry, and development wide Freeview, satellite TV & digital radio.  All exterior finishes are low maintenance